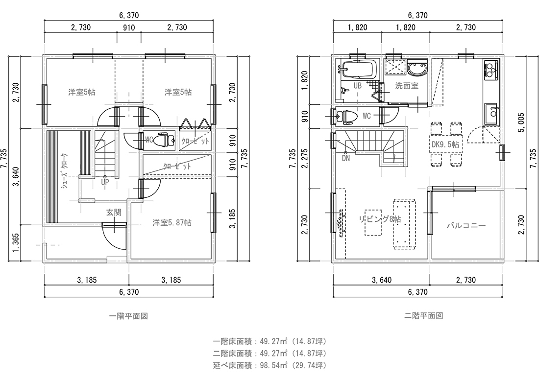
PLAN013LDK
高いプライベート性と日当たりの確保に優れた2階リビングプラン。
様々なライフスタイル、また建設地の諸条件により近年選択される事が多くなってきている人気な間取り。

価格¥16,200,000
あの家は自由設計です。間取り・価格のご参考にしてください。
価格はすべて本体工事価格の為、付帯工事金額、消費税、諸経費は含まれておりません。
間取りのご相談、詳しい仕様はお問い合わせください。
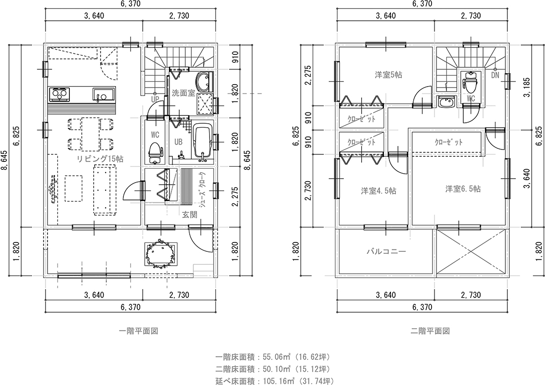
PLAN023LDK + テラス
屋外と室内の一体感が日々の生活を楽しくしてくれるテラス付きプラン。
プライベートカフェやボタニカルライフを楽しんだりと用途は様々。
わたしの『好き』を生活の一部にをコンセプトにした間取りです。

価格¥17,200,000
あの家は自由設計です。間取り・価格のご参考にしてください。
価格はすべて本体工事価格の為、付帯工事金額、消費税、諸経費は含まれておりません。
間取りのご相談、詳しい仕様はお問い合わせください。




